Elected Officials
Courts
Departments
Initiatives
Open Government
About
Login / Register
Home
/
Property & Tax Records
/
Property Records
/
Property & Tax Search
/
Parcel Profile
/
Sketches
Search for Another Parcel
Parcel Profile
Historical Card
Sketches
Photos
Tax Map
Taxes
Print View
Address: 222 EUCLID AVE
Parcel: 14011023020900
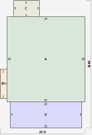
Parcel Sketches
Residential Card 1
A
MAIN
624 square feet
B
1S FR ONE STORY FRAME
18 square feet
C
EFP ENCL FRAME PORCH
40 square feet
D
1S FR ONE STORY FRAME
176 square feet