Elected Officials
Courts
Departments
Initiatives
Open Government
About
Login / Register
Home
/
Property & Tax Records
/
Property Records
/
Property & Tax Search
/
Parcel Profile
/
Sketches
Search for Another Parcel
Parcel Profile
Historical Card
Sketches
Photos
Tax Map
Taxes
Print View
Address: 1959 LAKESIDE DR
Parcel: 14011024021500
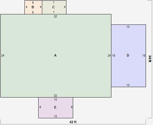
Parcel Sketches
Residential Card 1
A
MAIN
768 square feet
B
1S FR ONE STORY FRAME
20 square feet
C
OFP OPEN FRAME PORCH
28 square feet
D
1S FR ONE STORY FRAME
180 square feet
E
OFP OPEN FRAME PORCH
60 square feet