Elected Officials
Courts
Departments
Initiatives
Open Government
About
Login / Register
Home
/
Property & Tax Records
/
Property Records
/
Property & Tax Search
/
Parcel Profile
/
Sketches
Search for Another Parcel
Parcel Profile
Historical Card
Sketches
Photos
Tax Map
Taxes
Print View
Address: 1212 GERMAN ST
Parcel: 15020013020400
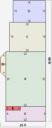
Parcel Sketches
Residential Card 1
A
MAIN
660 square feet
B
UNFIN BSMT BASEMENT UNFINISHED FRBAY FRAME BAY
33 square feet
C
1S FR ONE STORY FRAME
320 square feet
D
EFP ENCL FRAME PORCH
216 square feet
E
OFP OPEN FRAME PORCH
176 square feet
F
EFP ENCL FRAME PORCH
16 square feet