Elected Officials
Courts
Departments
Initiatives
Open Government
About
Login / Register
Home
/
Property & Tax Records
/
Property Records
/
Property & Tax Search
/
Parcel Profile
/
Sketches
Search for Another Parcel
Parcel Profile
Historical Card
Sketches
Photos
Tax Map
Taxes
Print View
Address: 214 E 13 ST
Parcel: 15020013022700
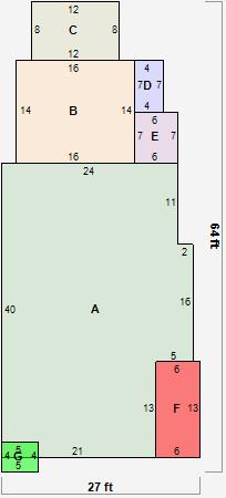
Parcel Sketches
Residential Card 1
A
MAIN
953 square feet
B
1S FR ONE STORY FRAME 1S FR ONE STORY FRAME
224 square feet
C
EFP ENCL FRAME PORCH
96 square feet
D
OFP OPEN FRAME PORCH
28 square feet
E
EFP ENCL FRAME PORCH
42 square feet
F
OFP OPEN FRAME PORCH OFP OPEN FRAME PORCH
78 square feet
G
OFP OPEN FRAME PORCH
20 square feet