Elected Officials
Courts
Departments
Initiatives
Open Government
About
Login / Register
Home
/
Property & Tax Records
/
Property Records
/
Property & Tax Search
/
Parcel Profile
/
Sketches
Search for Another Parcel
Parcel Profile
Historical Card
Sketches
Photos
Tax Map
Taxes
Print View
Address: 343 47 E 10 ST
Parcel: 15020017021300
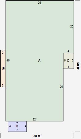
Parcel Sketches
Residential Card 1
A
MAIN
1510 square feet
B
OFP OPEN FRAME PORCH
35 square feet
C
EFP ENCL FRAME PORCH
45 square feet
Residential Card 2
A
MAIN
1092 square feet
B
UNFIN BSMT BASEMENT UNFINISHED FRBAY FRAME BAY
28 square feet
C
OFP OPEN FRAME PORCH
24 square feet
D
WDDCK WOOD DECKS
28 square feet