Elected Officials
Courts
Departments
Initiatives
Open Government
About
Login / Register
Home
/
Property & Tax Records
/
Property Records
/
Property & Tax Search
/
Parcel Profile
/
Sketches
Search for Another Parcel
Parcel Profile
Historical Card
Sketches
Photos
Tax Map
Taxes
Print View
Address: 317 E 10 ST
Parcel: 15020017022000
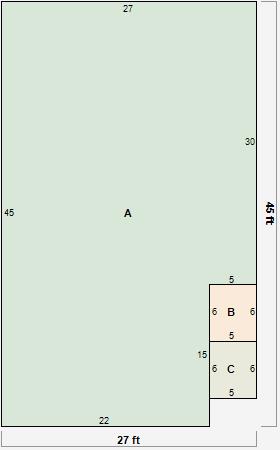
Parcel Sketches
Residential Card 1
A
MAIN
1228 square feet
B
EFP ENCL FRAME PORCH EFP ENCL FRAME PORCH
72 square feet
C
UNFIN BSMT BASEMENT UNFINISHED MABAY MASONRY BAY MABAY MASONRY BAY
39 square feet
D
OMP OPEN MASONRY PORCH
208 square feet
Residential Card 2
A
MAIN
1140 square feet
B
EFP ENCL FRAME PORCH
30 square feet
C
OFP OPEN FRAME PORCH
30 square feet