Elected Officials
Courts
Departments
Initiatives
Open Government
About
Login / Register
Home
/
Property & Tax Records
/
Property Records
/
Property & Tax Search
/
Parcel Profile
/
Sketches
Search for Another Parcel
Parcel Profile
Historical Card
Sketches
Photos
Tax Map
Taxes
Print View
Address: 314 E 13 ST
Parcel: 15020018024500
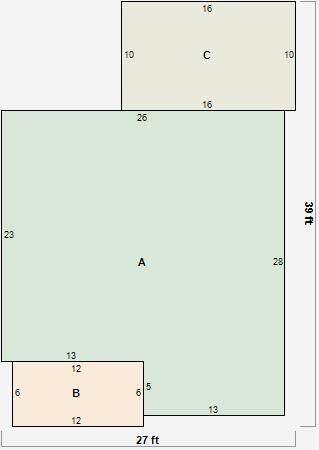
Parcel Sketches
Residential Card 1
A
MAIN
663 square feet
B
OFP OPEN FRAME PORCH
72 square feet
C
1S FR ONE STORY FRAME
160 square feet