Elected Officials
Courts
Departments
Initiatives
Open Government
About
Login / Register
Home
/
Property & Tax Records
/
Property Records
/
Property & Tax Search
/
Parcel Profile
/
Sketches
Search for Another Parcel
Parcel Profile
Historical Card
Sketches
Photos
Tax Map
Taxes
Print View
Address: 433 E 9 ST
Parcel: 15020021011100
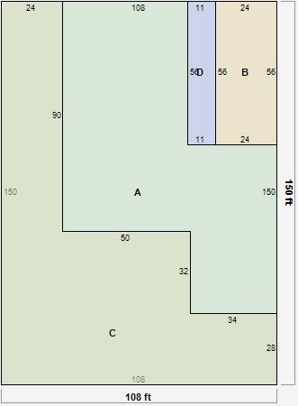
Parcel Sketches
Commercial Card 1
A
MAIN
16200 square feet
B
MAIN
1344 square feet
C
MAIN
6928 square feet
D
MAIN
616 square feet