Elected Officials
Courts
Departments
Initiatives
Open Government
About
Login / Register
Home
/
Property & Tax Records
/
Property Records
/
Property & Tax Search
/
Parcel Profile
/
Sketches
Search for Another Parcel
Parcel Profile
Historical Card
Sketches
Photos
Tax Map
Taxes
Print View
Address: 454 E 10 ST
Parcel: 15020021012800
Parcel Sketches
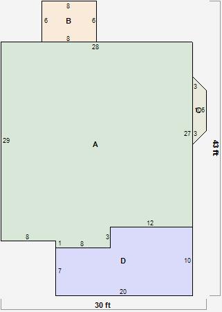
Residential Card 1
A
MAIN
796 square feet
B
OFP OPEN FRAME PORCH
48 square feet
C
EFP ENCL FRAME PORCH
16 square feet
D
OFP OPEN FRAME PORCH
176 square feet
Residential Card 2
A
MAIN
740 square feet
B
OFP OPEN FRAME PORCH
102 square feet
C
EFP ENCL FRAME PORCH
64 square feet
D
OFP OPEN FRAME PORCH
24 square feet
E
1S FR ONE STORY FRAME
192 square feet
F
1S FR ONE STORY FRAME
68 square feet
G
OFP OPEN FRAME PORCH
156 square feet