Elected Officials
Courts
Departments
Initiatives
Open Government
About
Login / Register
Home
/
Property & Tax Records
/
Property Records
/
Property & Tax Search
/
Parcel Profile
/
Sketches
Search for Another Parcel
Parcel Profile
Historical Card
Sketches
Photos
Tax Map
Taxes
Print View
Address: 456 E 10 ST
Parcel: 15020021012900
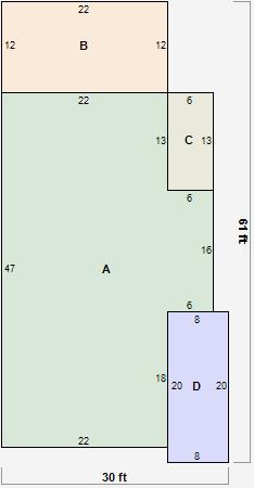
Parcel Sketches
Residential Card 1
A
MAIN
1130 square feet
B
FR GR FRAME GARAGE
264 square feet
C
1S FR ONE STORY FRAME
78 square feet
D
EMP ENCL MASONRY PORCH
160 square feet