Elected Officials
Courts
Departments
Initiatives
Open Government
About
Login / Register
Home
/
Property & Tax Records
/
Property Records
/
Property & Tax Search
/
Parcel Profile
/
Sketches
Search for Another Parcel
Parcel Profile
Historical Card
Sketches
Photos
Tax Map
Taxes
Print View
Address: 444 E 12 ST
Parcel: 15020022013700
Parcel Sketches
Residential Card 1
A
MAIN
696 square feet
B
EFP ENCL FRAME PORCH
12 square feet
C
OFP OPEN FRAME PORCH
30 square feet
D
OMP OPEN MASONRY PORCH
192 square feet
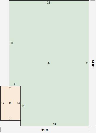
Residential Card 2
A
MAIN
1176 square feet
B
OFP OPEN FRAME PORCH OFP OPEN FRAME PORCH
84 square feet