Elected Officials
Courts
Departments
Initiatives
Open Government
About
Login / Register
Home
/
Property & Tax Records
/
Property Records
/
Property & Tax Search
/
Parcel Profile
/
Sketches
Search for Another Parcel
Parcel Profile
Historical Card
Sketches
Photos
Tax Map
Taxes
Print View
Address: 452 E 12 ST
Parcel: 15020022013900
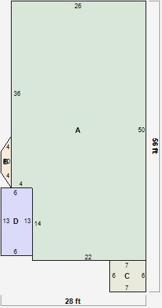
Parcel Sketches
Residential Card 1
A
MAIN
1244 square feet
B
UNFIN BSMT BASEMENT UNFINISHED FRBAY FRAME BAY
14 square feet
C
OFP OPEN FRAME PORCH
42 square feet
D
OFP OPEN FRAME PORCH OFP OPEN FRAME PORCH
78 square feet