Elected Officials
Courts
Departments
Initiatives
Open Government
About
Login / Register
Home
/
Property & Tax Records
/
Property Records
/
Property & Tax Search
/
Parcel Profile
/
Sketches
Search for Another Parcel
Parcel Profile
Historical Card
Sketches
Photos
Tax Map
Taxes
Print View
Address: 435 37 E 12 ST
Parcel: 15020023030700
Parcel Sketches
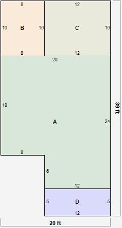
Residential Card 1
A
MAIN
432 square feet
B
EFP ENCL FRAME PORCH
80 square feet
C
1S FR ONE STORY FRAME
120 square feet
D
OFP OPEN FRAME PORCH
60 square feet
Residential Card 2
A
MAIN
660 square feet
B
1S FR ONE STORY FRAME
153 square feet
C
OFP OPEN FRAME PORCH
45 square feet
D
1S FR ONE STORY FRAME
336 square feet
E
OFP OPEN FRAME PORCH
80 square feet