Elected Officials
Courts
Departments
Initiatives
Open Government
About
Login / Register
Home
/
Property & Tax Records
/
Property Records
/
Property & Tax Search
/
Parcel Profile
/
Sketches
Search for Another Parcel
Parcel Profile
Historical Card
Sketches
Photos
Tax Map
Taxes
Print View
Address: 541 E 11 ST
Parcel: 15020027010700
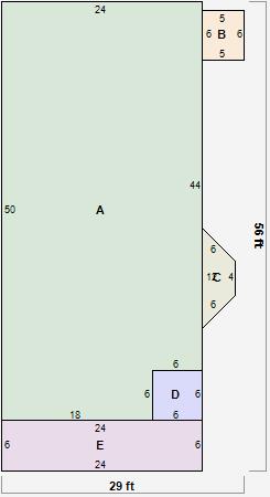
Parcel Sketches
Residential Card 1
A
MAIN
1164 square feet
B
OFP OPEN FRAME PORCH
30 square feet
C
UNFIN BSMT BASEMENT UNFINISHED MABAY MASONRY BAY MABAY MASONRY BAY
32 square feet
D
EMP ENCL MASONRY PORCH EFP ENCL FRAME PORCH
36 square feet
E
OMP OPEN MASONRY PORCH
144 square feet