Elected Officials
Courts
Departments
Initiatives
Open Government
About
Login / Register
Home
/
Property & Tax Records
/
Property Records
/
Property & Tax Search
/
Parcel Profile
/
Sketches
Search for Another Parcel
Parcel Profile
Historical Card
Sketches
Photos
Tax Map
Taxes
Print View
Address: 913 ASH ST
Parcel: 15020031012300
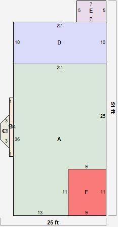
Parcel Sketches
Residential Card 1
A
MAIN
693 square feet
B
1S FR ONE STORY FRAME 1S FR ONE STORY FRAME
14 square feet
C
FRBAY FRAME BAY
12 square feet
D
1S FR ONE STORY FRAME
220 square feet
E
FR UT FRAME UTILITY BUILDING
35 square feet
F
EFP ENCL FRAME PORCH
99 square feet