Elected Officials
Courts
Departments
Initiatives
Open Government
About
Login / Register
Home
/
Property & Tax Records
/
Property Records
/
Property & Tax Search
/
Parcel Profile
/
Sketches
Search for Another Parcel
Parcel Profile
Historical Card
Sketches
Photos
Tax Map
Taxes
Print View
Address: 811 ASH ST
Parcel: 15020031021600
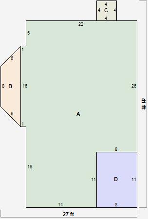
Parcel Sketches
Residential Card 1
A
MAIN
742 square feet
B
FRBAY FRAME BAY
48 square feet
C
FR UT FRAME UTILITY BUILDING
16 square feet
D
EFP ENCL FRAME PORCH 1/2FR FRAME HALF-STORY
88 square feet