Elected Officials
Courts
Departments
Initiatives
Open Government
About
Login / Register
Home
/
Property & Tax Records
/
Property Records
/
Property & Tax Search
/
Parcel Profile
/
Sketches
Search for Another Parcel
Parcel Profile
Historical Card
Sketches
Photos
Tax Map
Taxes
Print View
Address: 613 15 E 11 ST
Parcel: 15020032011100
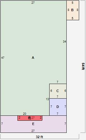
Parcel Sketches
Residential Card 1
A
MAIN
1178 square feet
B
OFP OPEN FRAME PORCH
40 square feet
C
EFP ENCL FRAME PORCH
42 square feet
D
OFP OPEN FRAME PORCH
49 square feet
E
OFP OPEN FRAME PORCH
189 square feet
F
FROVR FRAME OVERHANG
20 square feet