Elected Officials
Courts
Departments
Initiatives
Open Government
About
Login / Register
Home
/
Property & Tax Records
/
Property Records
/
Property & Tax Search
/
Parcel Profile
/
Sketches
Search for Another Parcel
Parcel Profile
Historical Card
Sketches
Photos
Tax Map
Taxes
Print View
Address: 656 E 11 ST
Parcel: 15020032023200
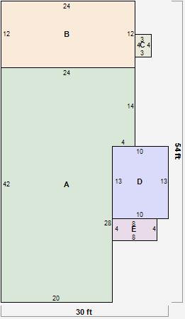
Parcel Sketches
Residential Card 1
A
MAIN
896 square feet
B
1SMAS MASONRY 1SMAS MASONRY
288 square feet
C
MA STOOP/TERR MAS STOOP EMP ENCL MASONRY PORCH
12 square feet
D
UNFIN BSMT BASEMENT UNFINISHED 1SMAS MASONRY
130 square feet
E
MA STOOP/TERR MAS STOOP
32 square feet