Elected Officials
Courts
Departments
Initiatives
Open Government
About
Login / Register
Home
/
Property & Tax Records
/
Property Records
/
Property & Tax Search
/
Parcel Profile
/
Sketches
Search for Another Parcel
Parcel Profile
Historical Card
Sketches
Photos
Tax Map
Taxes
Print View
Address: 607 E 14 ST
Parcel: 15020033011900
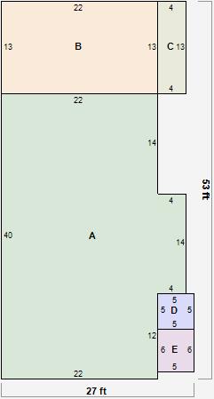
Parcel Sketches
Residential Card 1
A
MAIN
936 square feet
B
UNFIN BSMT BASEMENT UNFINISHED 1S FR ONE STORY FRAME
286 square feet
C
EFP ENCL FRAME PORCH
52 square feet
D
EFP ENCL FRAME PORCH
25 square feet
E
OFP OPEN FRAME PORCH
30 square feet