Elected Officials
Courts
Departments
Initiatives
Open Government
About
Login / Register
Home
/
Property & Tax Records
/
Property Records
/
Property & Tax Search
/
Parcel Profile
/
Sketches
Search for Another Parcel
Parcel Profile
Historical Card
Sketches
Photos
Tax Map
Taxes
Print View
Address: 641 E 13 ST
Parcel: 15020033020600
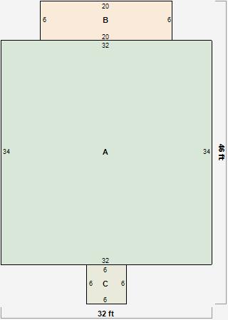
Parcel Sketches
Residential Card 1
A
MAIN
1088 square feet
B
OFP OPEN FRAME PORCH
120 square feet
C
MA STOOP/TERR MAS STOOP
36 square feet