Elected Officials
Courts
Departments
Initiatives
Open Government
About
Login / Register
Home
/
Property & Tax Records
/
Property Records
/
Property & Tax Search
/
Parcel Profile
/
Sketches
Search for Another Parcel
Parcel Profile
Historical Card
Sketches
Photos
Tax Map
Taxes
Print View
Address: 1207 ASH ST
Parcel: 15020033033600
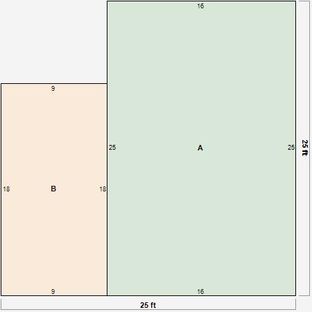
Parcel Sketches
Residential Card 1
A
MAIN
400 square feet
B
1S FR ONE STORY FRAME
162 square feet