Elected Officials
Courts
Departments
Initiatives
Open Government
About
Login / Register
Home
/
Property & Tax Records
/
Property Records
/
Property & Tax Search
/
Parcel Profile
/
Sketches
Search for Another Parcel
Parcel Profile
Historical Card
Sketches
Photos
Tax Map
Taxes
Print View
Address: 702 E 10 ST
Parcel: 15020034012300
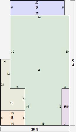
Parcel Sketches
Residential Card 1
A
MAIN
945 square feet
B
OMP OPEN MASONRY PORCH
60 square feet
C
1SMAS MASONRY
138 square feet
D
EFP ENCL FRAME PORCH EFP ENCL FRAME PORCH
132 square feet
E
EFP ENCL FRAME PORCH
45 square feet