Elected Officials
Courts
Departments
Initiatives
Open Government
About
Login / Register
Home
/
Property & Tax Records
/
Property Records
/
Property & Tax Search
/
Parcel Profile
/
Sketches
Search for Another Parcel
Parcel Profile
Historical Card
Sketches
Photos
Tax Map
Taxes
Print View
Address: 1111 REED ST
Parcel: 15020035011700
Parcel Sketches
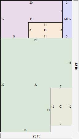
Residential Card 1
A
MAIN
592 square feet
B
1S FR ONE STORY FRAME
55 square feet
C
EFP ENCL FRAME PORCH
84 square feet
D
CANPY CANOPY
36 square feet
E
EFP ENCL FRAME PORCH
185 square feet