Elected Officials
Courts
Departments
Initiatives
Open Government
About
Login / Register
Home
/
Property & Tax Records
/
Property Records
/
Property & Tax Search
/
Parcel Profile
/
Sketches
Search for Another Parcel
Parcel Profile
Historical Card
Sketches
Photos
Tax Map
Taxes
Print View
Address: 933 E 11 ST
Parcel: 15020044013700
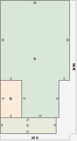
Parcel Sketches
Residential Card 1
A
MAIN
976 square feet
B
EMP ENCL MASONRY PORCH
112 square feet
C
OMP OPEN MASONRY PORCH
126 square feet