Elected Officials
Courts
Departments
Initiatives
Open Government
About
Login / Register
Home
/
Property & Tax Records
/
Property Records
/
Property & Tax Search
/
Parcel Profile
/
Sketches
Search for Another Parcel
Parcel Profile
Historical Card
Sketches
Photos
Tax Map
Taxes
Print View
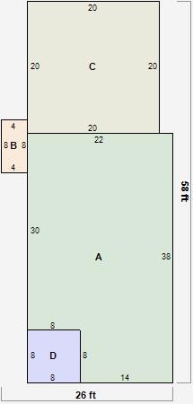
Address: 911 EAST AVE
Parcel: 15020045012200
Parcel Sketches
Residential Card 1
A
MAIN
772 square feet
B
EFP ENCL FRAME PORCH
32 square feet
C
UNFIN BSMT BASEMENT UNFINISHED 1S FR ONE STORY FRAME
400 square feet
D
OFP OPEN FRAME PORCH
64 square feet