Elected Officials
Courts
Departments
Initiatives
Open Government
About
Login / Register
Home
/
Property & Tax Records
/
Property Records
/
Property & Tax Search
/
Parcel Profile
/
Sketches
Search for Another Parcel
Parcel Profile
Historical Card
Sketches
Photos
Tax Map
Taxes
Print View
Address: 1016 E 11 ST
Parcel: 15020046022700
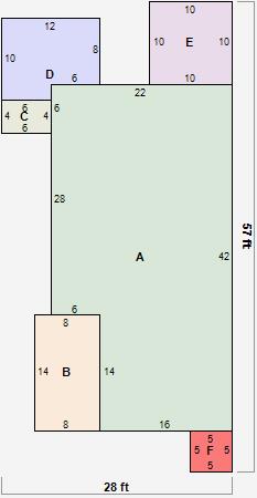
Parcel Sketches
Residential Card 1
A
MAIN
840 square feet
B
OFP OPEN FRAME PORCH
112 square feet
C
MA STOOP/TERR MAS STOOP
24 square feet
D
EFP ENCL FRAME PORCH
108 square feet
E
1S FR ONE STORY FRAME
100 square feet
F
OFP OPEN FRAME PORCH
25 square feet