Elected Officials
Courts
Departments
Initiatives
Open Government
About
Login / Register
Home
/
Property & Tax Records
/
Property Records
/
Property & Tax Search
/
Parcel Profile
/
Sketches
Search for Another Parcel
Parcel Profile
Historical Card
Sketches
Photos
Tax Map
Taxes
Print View
Address: 1116 E 9 ST
Parcel: 15020047022400
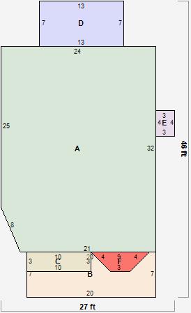
Parcel Sketches
Residential Card 1
A
MAIN
758 square feet
B
1S FR ONE STORY FRAME
140 square feet
C
OFP OPEN FRAME PORCH
30 square feet
D
EFP ENCL FRAME PORCH
91 square feet
E
OFP OPEN FRAME PORCH
12 square feet
F
UNFIN BSMT BASEMENT UNFINISHED 1S FR ONE STORY FRAME FRBAY FRAME BAY
18 square feet