Elected Officials
Courts
Departments
Initiatives
Open Government
About
Login / Register
Home
/
Property & Tax Records
/
Property Records
/
Property & Tax Search
/
Parcel Profile
/
Sketches
Search for Another Parcel
Parcel Profile
Historical Card
Sketches
Photos
Tax Map
Taxes
Print View
Address: 1102 04 BUFFALO RD
Parcel: 15020054011300
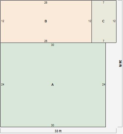
Parcel Sketches
Residential Card 1
A
MAIN
720 square feet
B
1S FR ONE STORY FRAME
312 square feet
C
MA_PT CONC/MAS PATIO
84 square feet