Elected Officials
Courts
Departments
Initiatives
Open Government
About
Login / Register
Home
/
Property & Tax Records
/
Property Records
/
Property & Tax Search
/
Parcel Profile
/
Sketches
Search for Another Parcel
Parcel Profile
Historical Card
Sketches
Photos
Tax Map
Taxes
Print View
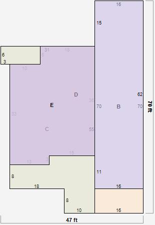
Address: 1358 BUFFALO RD
Parcel: 15021007010000
Parcel Sketches
Commercial Card 1
A
MAIN
987 square feet
B
MAIN
1120 square feet
C
MAIN
1414 square feet
D
MAIN
1979 square feet
E
MAIN
494 square feet