Elected Officials
Courts
Departments
Initiatives
Open Government
About
Login / Register
Home
/
Property & Tax Records
/
Property Records
/
Property & Tax Search
/
Parcel Profile
/
Sketches
Search for Another Parcel
Parcel Profile
Historical Card
Sketches
Photos
Tax Map
Taxes
Print View
Address: 1602 BUFFALO RD
Parcel: 15021016011000
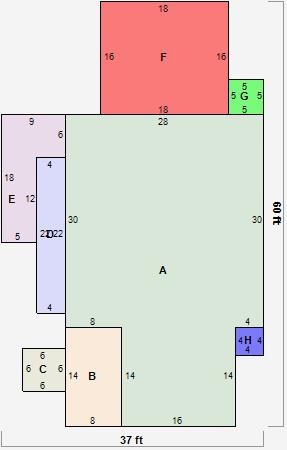
Parcel Sketches
Residential Card 1
A
MAIN
1064 square feet
B
1S FR ONE STORY FRAME
112 square feet
C
MA STOOP/TERR MAS STOOP
36 square feet
D
1S FR ONE STORY FRAME
88 square feet
E
MA STOOP/TERR MAS STOOP
114 square feet
F
1S FR ONE STORY FRAME 1/2FR FRAME HALF-STORY
288 square feet
G
EFP ENCL FRAME PORCH
25 square feet
H
EFP ENCL FRAME PORCH
16 square feet