Elected Officials
Courts
Departments
Initiatives
Open Government
About
Login / Register
Home
/
Property & Tax Records
/
Property Records
/
Property & Tax Search
/
Parcel Profile
/
Sketches
Search for Another Parcel
Parcel Profile
Historical Card
Sketches
Photos
Tax Map
Taxes
Print View
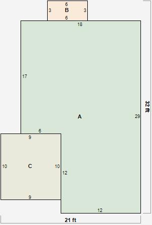
Address: 1124 SENECA ST
Parcel: 15021024030800
Parcel Sketches
Residential Card 1
A
MAIN
450 square feet
B
WDDCK WOOD DECKS
18 square feet
C
EFP ENCL FRAME PORCH
90 square feet