Elected Officials
Courts
Departments
Initiatives
Open Government
About
Login / Register
Home
/
Property & Tax Records
/
Property Records
/
Property & Tax Search
/
Parcel Profile
/
Sketches
Search for Another Parcel
Parcel Profile
Historical Card
Sketches
Photos
Tax Map
Taxes
Print View
Address: 822 24 STATE ST
Parcel: 16030005020300
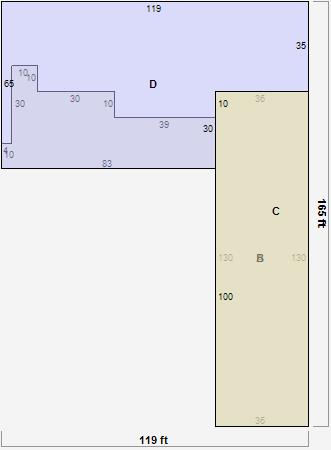
Parcel Sketches
Commercial Card 1
A
MAIN
4680 square feet
B
MAIN
4680 square feet
C
MAIN
6800 square feet
D
MAIN
6655 square feet