Address: 221 W 17 ST   Parcel: 16030011010800

Parcel Sketches


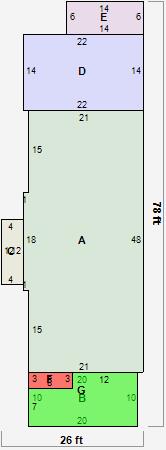
Residential Card 1

Residential Card 1
AMAIN1026 square feet
B EFP ENCL FRAME PORCH 200 square feet
CUNFIN BSMT BASEMENT UNFINISHED FRBAY FRAME BAY FRBAY FRAME BAY 48 square feet
DUNFIN BSMT BASEMENT UNFINISHED 1S FR ONE STORY FRAME 308 square feet
EUNFIN BSMT BASEMENT UNFINISHED EFP ENCL FRAME PORCH 84 square feet
F 1S FR ONE STORY FRAME 24 square feet
G OFP OPEN FRAME PORCH 176 square feet