Elected Officials
Courts
Departments
Initiatives
Open Government
About
Login / Register
Home
/
Property & Tax Records
/
Property Records
/
Property & Tax Search
/
Parcel Profile
/
Sketches
Search for Another Parcel
Parcel Profile
Historical Card
Sketches
Photos
Tax Map
Taxes
Print View
Address: 247 49 W 16 ST
Parcel: 16030011031600
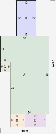
Parcel Sketches
Residential Card 1
A
MAIN
1248 square feet
B
OFP OPEN FRAME PORCH
72 square feet
C
OFP OPEN FRAME PORCH
36 square feet
D
1S FR ONE STORY FRAME 1/2FR FRAME HALF-STORY
264 square feet
E
1S FR ONE STORY FRAME
104 square feet