Elected Officials
Courts
Departments
Initiatives
Open Government
About
Login / Register
Home
/
Property & Tax Records
/
Property Records
/
Property & Tax Search
/
Parcel Profile
/
Sketches
Search for Another Parcel
Parcel Profile
Historical Card
Sketches
Photos
Tax Map
Taxes
Print View
Address: 1601 MYRTLE ST
Parcel: 16030011031900
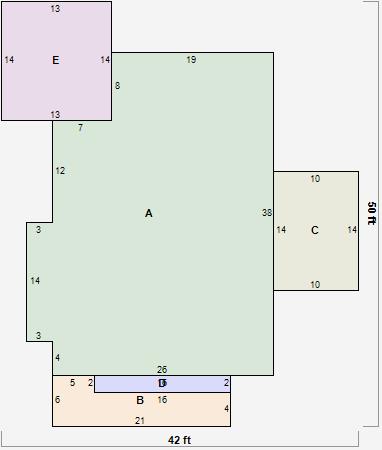
Parcel Sketches
Residential Card 1
A
MAIN
974 square feet
B
OFP OPEN FRAME PORCH OFP OPEN FRAME PORCH
94 square feet
C
1S FR ONE STORY FRAME
140 square feet
D
OFP OPEN FRAME PORCH FROVR FRAME OVERHANG
32 square feet
E
SRN PRCH SCREEN PORCH
182 square feet