Elected Officials
Courts
Departments
Initiatives
Open Government
About
Login / Register
Home
/
Property & Tax Records
/
Property Records
/
Property & Tax Search
/
Parcel Profile
/
Sketches
Search for Another Parcel
Parcel Profile
Historical Card
Sketches
Photos
Tax Map
Taxes
Print View
Address: 352 W 17 ST
Parcel: 16030016031500
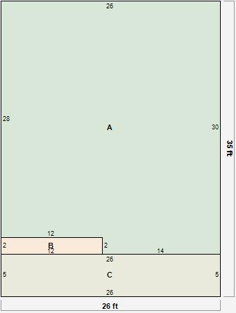
Parcel Sketches
Residential Card 1
A
MAIN
756 square feet
B
OFP OPEN FRAME PORCH 1S FR ONE STORY FRAME AT UN ATTIC-UNFINISHED
24 square feet
C
OFP OPEN FRAME PORCH
130 square feet