Elected Officials
Courts
Departments
Initiatives
Open Government
About
Login / Register
Home
/
Property & Tax Records
/
Property Records
/
Property & Tax Search
/
Parcel Profile
/
Sketches
Search for Another Parcel
Parcel Profile
Historical Card
Sketches
Photos
Tax Map
Taxes
Print View
Address: 420 HURON ST
Parcel: 16030022020500
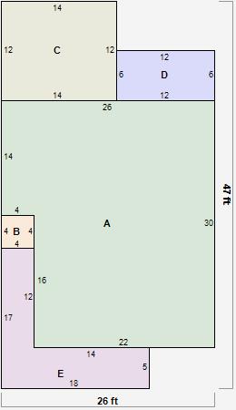
Parcel Sketches
Residential Card 1
A
MAIN
716 square feet
B
1S FR ONE STORY FRAME
16 square feet
C
OFP OPEN FRAME PORCH
168 square feet
D
WDDCK WOOD DECKS
72 square feet
E
OFP OPEN FRAME PORCH
138 square feet