Address: 421 W 10 ST   Parcel: 16030024021100

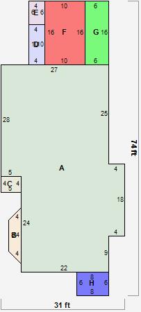
Parcel Sketches


Residential Card 1

Residential Card 1
AMAIN1356 square feet
BUNFIN BSMT BASEMENT UNFINISHED FRBAY FRAME BAY 33 square feet
C OFP OPEN FRAME PORCH 20 square feet
D EFP ENCL FRAME PORCH 1S FR ONE STORY FRAME 40 square feet
E 1S FR ONE STORY FRAME 24 square feet
FUNFIN BSMT BASEMENT UNFINISHED 1S FR ONE STORY FRAME 1S FR ONE STORY FRAME 160 square feet
GUNFIN BSMT BASEMENT UNFINISHED 1S FR ONE STORY FRAME 96 square feet
H OFP OPEN FRAME PORCH 48 square feet