Elected Officials
Courts
Departments
Initiatives
Open Government
About
Login / Register
Home
/
Property & Tax Records
/
Property Records
/
Property & Tax Search
/
Parcel Profile
/
Sketches
Search for Another Parcel
Parcel Profile
Historical Card
Sketches
Photos
Tax Map
Taxes
Print View
Address: 456 58 W 10 ST
Parcel: 16030025013200
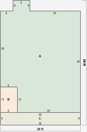
Parcel Sketches
Residential Card 1
A
MAIN
1768 square feet
B
UNFIN BSMT BASEMENT UNFINISHED OMP OPEN MASONRY PORCH 1SMAS MASONRY
96 square feet
C
MA_PT CONC/MAS PATIO
228 square feet