Elected Officials
Courts
Departments
Initiatives
Open Government
About
Login / Register
Home
/
Property & Tax Records
/
Property Records
/
Property & Tax Search
/
Parcel Profile
/
Sketches
Search for Another Parcel
Parcel Profile
Historical Card
Sketches
Photos
Tax Map
Taxes
Print View
Address: 563 W 8 ST
Parcel: 16030030021200
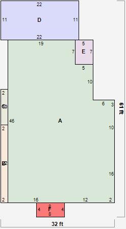
Parcel Sketches
Residential Card 1
A
MAIN
1302 square feet
B
AT FN ATTIC-FINISHED
44 square feet
C
FROVR FRAME OVERHANG AT FN ATTIC-FINISHED
20 square feet
D
FR GR FRAME GARAGE
242 square feet
E
UNFIN BSMT BASEMENT UNFINISHED EMP ENCL MASONRY PORCH EMP ENCL MASONRY PORCH AT FN ATTIC-FINISHED
35 square feet
F
MA STOOP/TERR MAS STOOP
32 square feet