Address: 634 W 10 ST   Parcel: 16030035013700

Parcel Sketches


Residential Card 1

Residential Card 1
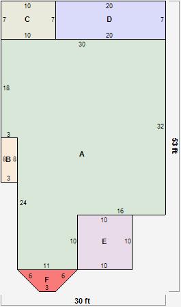
AMAIN1028 square feet
B FRBAY FRAME BAY AT UN ATTIC-UNFINISHED 24 square feet
C OFP OPEN FRAME PORCH 70 square feet
DUNFIN BSMT BASEMENT UNFINISHED 1S FR ONE STORY FRAME 140 square feet
E OFP OPEN FRAME PORCH 100 square feet
F FRBAY FRAME BAY FRBAY FRAME BAY 28 square feet