Address: 717 19 W 9 ST   Parcel: 16030040010700

Parcel Sketches


Residential Card 1

Residential Card 1
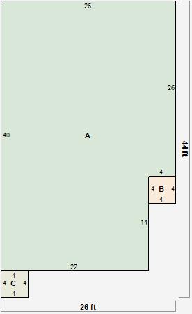
AMAIN1408 square feet
B MA_PT CONC/MAS PATIO 216 square feet
C 1S FR ONE STORY FRAME 144 square feet
D FRBAY FRAME BAY OFP OPEN FRAME PORCH 22 square feet
E OFP OPEN FRAME PORCH OFP OPEN FRAME PORCH 270 square feet
F OFP OPEN FRAME PORCH FRBAY FRAME BAY 22 square feet
G OFP OPEN FRAME PORCH 1S FR ONE STORY FRAME AT UN ATTIC-UNFINISHED32 square feet

Residential Card 2

Residential Card 2
AMAIN984 square feet
B MA STOOP/TERR MAS STOOP 16 square feet
C MA STOOP/TERR MAS STOOP 16 square feet