Elected Officials
Courts
Departments
Initiatives
Open Government
About
Login / Register
Home
/
Property & Tax Records
/
Property Records
/
Property & Tax Search
/
Parcel Profile
/
Sketches
Search for Another Parcel
Parcel Profile
Historical Card
Sketches
Photos
Tax Map
Taxes
Print View
Address: 711 13 W 8TH ST
Parcel: 16030040020700
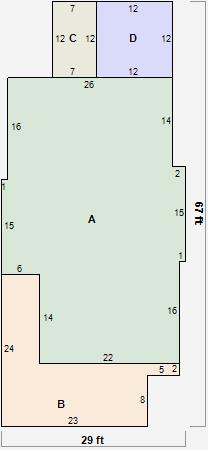
Parcel Sketches
Residential Card 1
A
MAIN
1161 square feet
B
WDDCK WOOD DECKS
324 square feet
C
CANPY CANOPY
84 square feet
D
1S FR ONE STORY FRAME
144 square feet