Elected Officials
Courts
Departments
Initiatives
Open Government
About
Login / Register
Home
/
Property & Tax Records
/
Property Records
/
Property & Tax Search
/
Parcel Profile
/
Sketches
Search for Another Parcel
Parcel Profile
Historical Card
Sketches
Photos
Tax Map
Taxes
Print View
Address: 823 LIBERTY ST
Parcel: 16030040021800
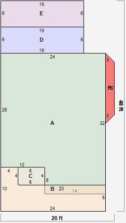
Parcel Sketches
Residential Card 1
A
MAIN
708 square feet
B
OMP OPEN MASONRY PORCH
160 square feet
C
EFP ENCL FRAME PORCH
24 square feet
D
UNFIN BSMT BASEMENT UNFINISHED 1S FR ONE STORY FRAME
114 square feet
E
1S FR ONE STORY FRAME
114 square feet
F
UNFIN BSMT BASEMENT UNFINISHED FRBAY FRAME BAY FRBAY FRAME BAY
28 square feet