Elected Officials
Courts
Departments
Initiatives
Open Government
About
Login / Register
Home
/
Property & Tax Records
/
Property Records
/
Property & Tax Search
/
Parcel Profile
/
Sketches
Search for Another Parcel
Parcel Profile
Historical Card
Sketches
Photos
Tax Map
Taxes
Print View
Address: 952 W 10 ST
Parcel: 16030047013200
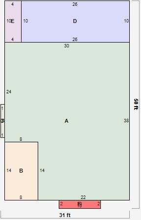
Parcel Sketches
Residential Card 1
A
MAIN
1028 square feet
B
OMP OPEN MASONRY PORCH
112 square feet
C
FRBAY FRAME BAY
8 square feet
D
1SMAS MASONRY 1S FR ONE STORY FRAME
260 square feet
E
EMP ENCL MASONRY PORCH
40 square feet
F
UNFIN BSMT BASEMENT UNFINISHED MABAY MASONRY BAY
20 square feet