Address: 934 W 9 ST   Parcel: 16030047023400

Parcel Sketches


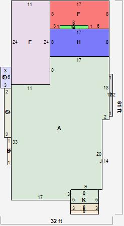
Residential Card 1

Residential Card 1
AMAIN987 square feet
B FRBAY FRAME BAY 8 square feet
CUNFIN BSMT BASEMENT UNFINISHED FRBAY FRAME BAY FRBAY FRAME BAY 28 square feet
D EFP ENCL FRAME PORCH 18 square feet
E 1S FR ONE STORY FRAME WDDCK WOOD DECKS 264 square feet
F 1S FR ONE STORY FRAME 1S FR ONE STORY FRAME 128 square feet
G FRBAY FRAME BAY 8 square feet
H 1S FR ONE STORY FRAME 1S FR ONE STORY FRAME 136 square feet
I FRBAY FRAME BAY 12 square feet
J FRBAY FRAME BAY 19 square feet
K EFP ENCL FRAME PORCH 48 square feet
L MA STOOP/TERR MAS STOOP CANPY CANOPY 24 square feet