Elected Officials
Courts
Departments
Initiatives
Open Government
About
Login / Register
Home
/
Property & Tax Records
/
Property Records
/
Property & Tax Search
/
Parcel Profile
/
Sketches
Search for Another Parcel
Parcel Profile
Historical Card
Sketches
Photos
Tax Map
Taxes
Print View
Address: 1020 CASCADE ST
Parcel: 16030051020300
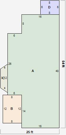
Parcel Sketches
Residential Card 1
A
MAIN
924 square feet
B
OFP OPEN FRAME PORCH EFP ENCL FRAME PORCH
96 square feet
C
FRBAY FRAME BAY
30 square feet
D
EFP ENCL FRAME PORCH
48 square feet