Elected Officials
Courts
Departments
Initiatives
Open Government
About
Login / Register
Home
/
Property & Tax Records
/
Property Records
/
Property & Tax Search
/
Parcel Profile
/
Sketches
Search for Another Parcel
Parcel Profile
Historical Card
Sketches
Photos
Tax Map
Taxes
Print View
Address: 1011 W 8 ST
Parcel: 16030052020400
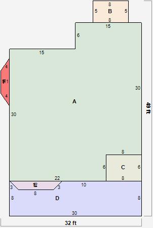
Parcel Sketches
Residential Card 1
A
MAIN
942 square feet
B
OFP OPEN FRAME PORCH
40 square feet
C
OFP OPEN FRAME PORCH 1S FR ONE STORY FRAME 1/2FR FRAME HALF-STORY
48 square feet
D
OFP OPEN FRAME PORCH
220 square feet
E
FRBAY FRAME BAY
20 square feet
F
UNFIN BSMT BASEMENT UNFINISHED FRBAY FRAME BAY
16 square feet