Elected Officials
Courts
Departments
Initiatives
Open Government
About
Login / Register
Home
/
Property & Tax Records
/
Property Records
/
Property & Tax Search
/
Parcel Profile
/
Sketches
Search for Another Parcel
Parcel Profile
Historical Card
Sketches
Photos
Tax Map
Taxes
Print View
Address: 815 RASPBERRY ST
Parcel: 16030052021800
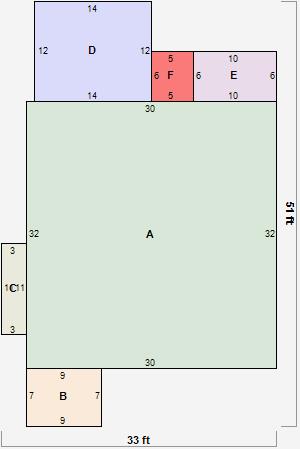
Parcel Sketches
Residential Card 1
A
MAIN
960 square feet
B
OFP OPEN FRAME PORCH
63 square feet
C
MASOH MASONRY OVERHANG
33 square feet
D
UNFIN BSMT BASEMENT UNFINISHED 1SMAS MASONRY
168 square feet
E
WDDCK WOOD DECKS
60 square feet
F
EMP ENCL MASONRY PORCH
30 square feet