Elected Officials
Courts
Departments
Initiatives
Open Government
About
Login / Register
Home
/
Property & Tax Records
/
Property Records
/
Property & Tax Search
/
Parcel Profile
/
Sketches
Search for Another Parcel
Parcel Profile
Historical Card
Sketches
Photos
Tax Map
Taxes
Print View
Address: 1062 W 9 ST
Parcel: 16030052022200
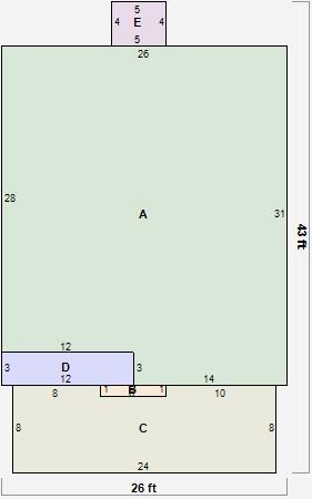
Parcel Sketches
Residential Card 1
A
MAIN
770 square feet
B
EFP ENCL FRAME PORCH
6 square feet
C
OFP OPEN FRAME PORCH
186 square feet
D
UNFIN BSMT BASEMENT UNFINISHED 1S FR ONE STORY FRAME
36 square feet
E
MA STOOP/TERR MAS STOOP
20 square feet